This mountain home is a calm, restrained modern volume with subtle nods to traditional timber architecture. The silvery gray hue of the wood unites the façades, decks, and railings, integrating the house seamlessly into the natural landscape.

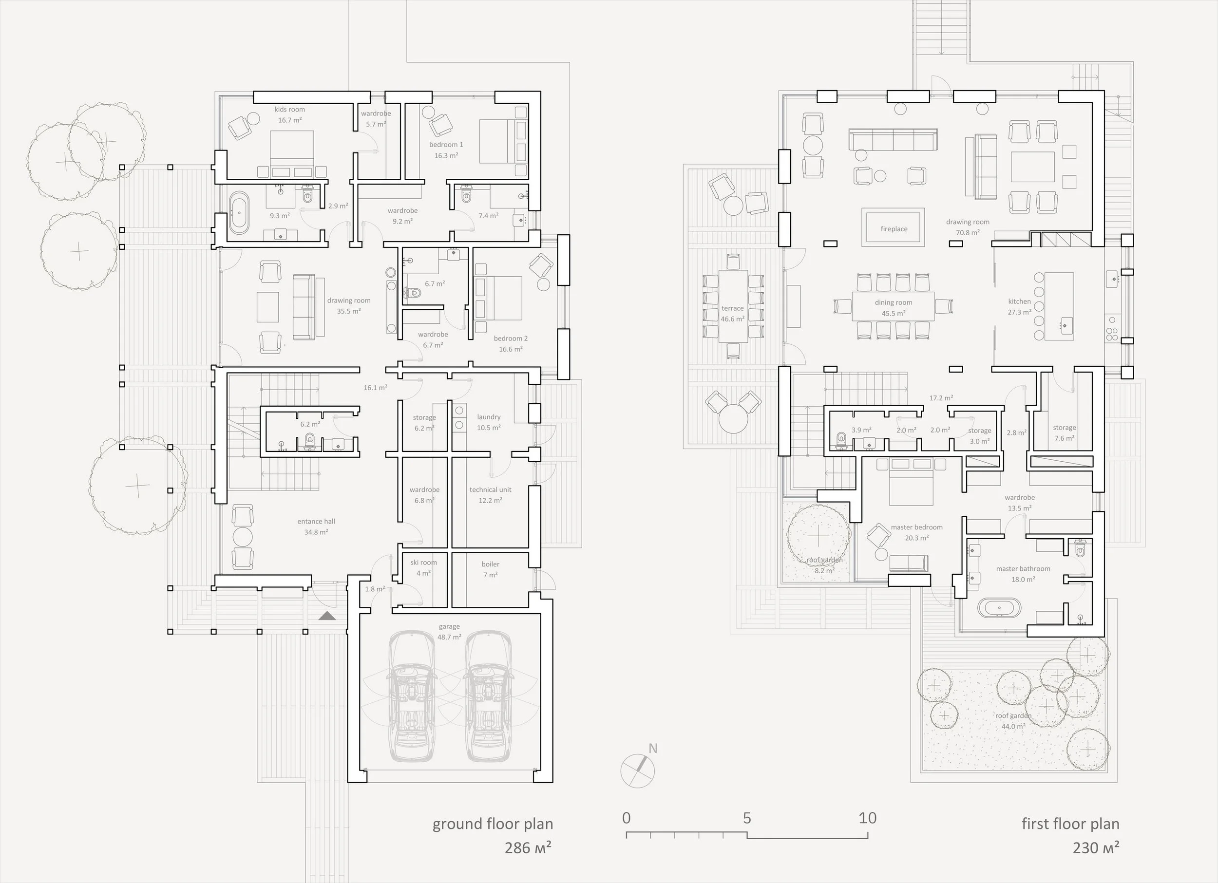
The layout is oriented toward the panorama: the main living spaces—living room, kitchen, and master bedroom—are placed on the second floor to fully open up the mountain views through windows and terraces. On the ground floor are cozy, sheltered spaces: a children’s room, guest bedrooms, and service areas. Here, comfort and privacy blend with direct access to the garden, creating a sense of a protected retreat.

The architecture relies on clear horizontals, deep overhangs, and a smooth transition between interior and landscape. It’s a contemporary Mountain Lodge, open to nature yet offering a sense of seclusion.

Previous
Previous

Villa J. T.

Next
Next

House by the Lake